This semi detached property, in walk in condition, is located in the popular residential area of Teaninich Street in a
cul-de-sac is conveniently located and within walking distance to the High Street.
The Town has a variety of services and amenities including library, Primary and Secondary Schools, florist, Churches, Golf Course, Leisure Centre and
a swimming pool, to name a few.
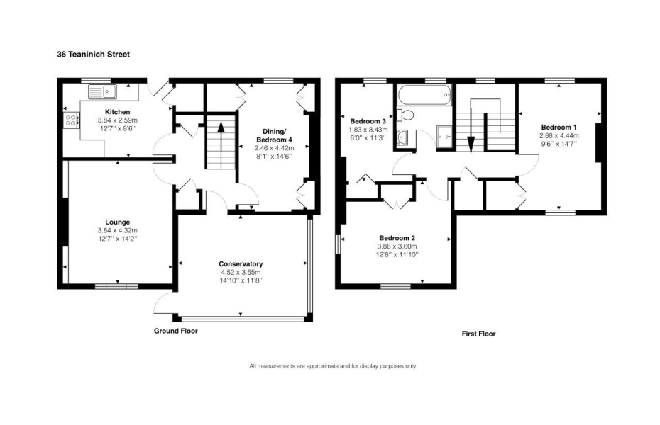
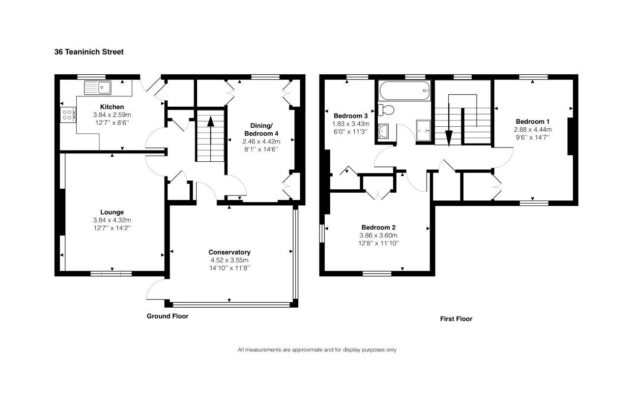
The ground floor accommodation consists of a conservatory, hall, lounge, kitchen and bedroom 4/dining room with a
further three bedrooms and bathroom, with separate shower, upstairs. The property benefits from oil central heating,
partial under floor heating and there are low maintenance gardens to the front, side and rear of the property with off
street parking to the front.
Alness provides easy access to the A9 for travelling North or South on the North Coast 500 scenic drive around the
North Highlands. The Highland Capital, Inverness, is approx. 21 miles to the South where all major transport links can be found.

Explore exclusive listings tailored to your lifestyle and budget. Let our experts guide you to your perfect home.

Our agents use market insights and strategic marketing to get your home sold quickly and at the best price.

Discover prime investment opportunities with high returns. We connect you with properties that match your goals.
Compare listings
ComparePlease enter your username or email address. You will receive a link to create a new password via email.